Брокер
Обща информация
Допълнителна информация
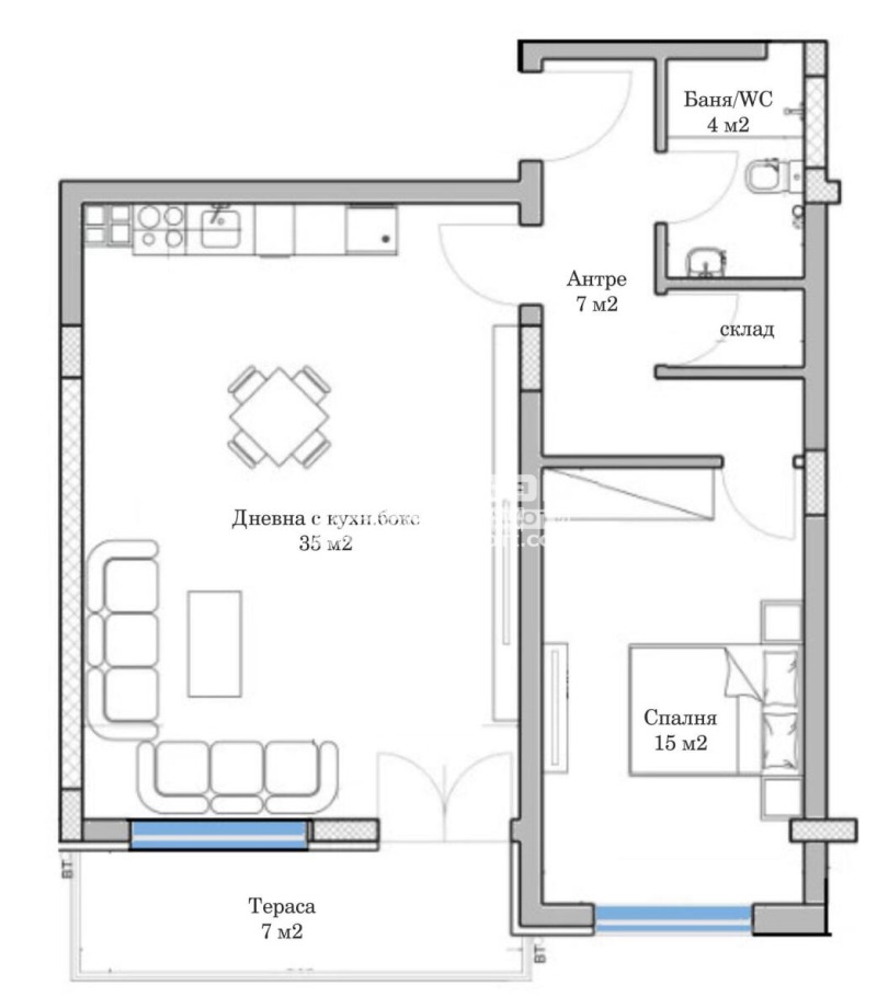
Оферта 68978 - ЛУКСОЗНА БУТИКОВА СГРАДА от висок клас в близост до идеалния център на града, в един от най-предпочитаните квартали, множество удобства и разбира се бърз достъп до Центъра. Жилището се състои от просторна дневна с трапезария и кухненски бокс 35кв. м. , голяма самостоятелна спалня 15кв. м. , баня с тоалетна, перално, входно антре и една тераса. Апартаментите се издават изцяло на замазка и шпакловка, с поставени входни блиндирани врати !!! Основното предимство на жилищната сграда е изчистена стилна архитектура, нейната локация и лимитираният брой апартаменти. В строителството са заложени строителни технологии от най-висок клас. Кооперация с изключително луксозни общи части проектирана в модерен стил. Около сградата има разнообразие от хранителни магазини, заведения, ресторанти и парк. Отлично изградена инфраструктура и лесен пешеходен достъп до ключови места. Възможност за закупуване на подземно и надземно паркомясто и гараж !!!


