Брокер
Обща информация
Допълнителна информация
Референтен номер: 1079.
Реф. номер: 1079
НОВ ИНОВАТИВЕН КОМПЛЕКС С МОДЕРНА ВИЗИЯ!
УДОБНА ЛОКАЦИЯ! 100% ОСИГУРЕНО ПАРКИРАНЕ!
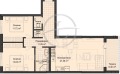
Предлагаме ви да закупите тристаен апартамент в новострояща се сграда в кв. Гагарин!
Основни характеристики на имота:
- Площ: 110, 61 кв. м
- Разпределение: Просторна и светла дневна с трапезария и кухненски бокс, две големи спални, баня с тоалетни, отделно тоалетна, входно антре, килер и тераса! Към апартамента има прилежащо избено помещение 3, 51кв. м
- Вид строителство: Ново, Тухла
- Изложение: Изток
- Етажност: 9 от 18
- Паркиране: Възможност за закупуване на подземно паркомясто или гараж.
Състояние на имота: Апартамента ще бъде издаден на шпакловка и замазка, което ви позволява да си го отремонтирате и обзаведете по свой собствен вкус!
Локация: Намира се на комуниикативна локация, в близост до Международен Панаир Пловдив, хипермаркети, детски градини, училища, спирки на градския транспорт и всичко необходимо за Вас и Вашето семейство!
За повече информация и организиране на огледи, моля, свържете се с нас на посочения номер, като ще Ви е необходим следният референтен номер: 1079
Лайт Хоум имоти е доверен партньор на най-големите банкови институции в страната и съдейства за преференциални условия при нужда от кредитиране. Ще получите юридическо съдействие през целия процес на сделката, както и съдействие при подготовка, подаване и получаване на всички необходими документи за сделката.



