Агенция
РЕВОЛЮЦИЯ НЕДВИЖИМИ ИМОТИ 2022 град Кърджали Кв. Студен Кладенец, бул. Беломорски 83А, бл. Чайка 1
Брокер
ЕминЛичен телефон: 0897898881
Посетена 96 пътиПубликувана в 16:43 на 08 Декември 2025
Обща информация
Квадратура57 m2
Допълнителна информация
ИМОТ No: 612
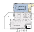
Продава 2-СТАЕН апартамент, ново тухлено строителство - в процес на строеж, в град Кърджали, квартал Възрожденци, в района на Пасарелката. Жилището е с обща площ 57. 02 кв. м. и се състои от антре, баня с тоалетна, всекидневна с кухненски кът, спалня, дворно място с площ 20. 1 кв. м. , мазе и ГАРАЖ с площ 23. 60 кв. м. Имота е разположен на 1-ви етаж.
Цена: 95 800 евро.
Особености
Асансьор • С гараж • Саниран • За ремонт • Тухла
Страница на обявата
Агенция
РЕВОЛЮЦИЯ НЕДВИЖИМИ ИМОТИ 2022 град Кърджали Кв. Студен Кладенец, бул. Беломорски 83А, бл. Чайка 1
Брокер
ЕминЛичен телефон: 0897898881







