Обща информация
Допълнителна информация
!Директно от инвеститор, без комисионна за купувача!
Атрактивна схема на плащане- 20% на предварителен догвор, 10% на акт 14 и 70% на акт 16.
Първа копка беше направена на 31. 01. 2026 г. Акт 14 се очаква до края на 2026 г. , акт 15 края на 2027 г. и въвеждане в експлоатация месец юни 2028 г.
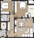
На вашето внимание предлагаме тристаен апартамент със застроена площ-78, 60 кв. м.
Lotus Living е бутиков жилищен комплекс от две елегантни сгради, разположен в квартал Горна баня. Комплексът е проектиран с мисъл за комфорт, спокойствие и хармония с природата. Разположен в престижния и зелен квартал Горна баня, комплексът предлага рядка комбинация от тишина, чист въздух и отлична градска свързаност.
Между двете сгради е оформено просторно дворно пространство, предназначено за отдих и социални моменти зелени площи и кътове за релакс, които създават усещане за уют и уединение. Ограниченият брой жилища гарантира спокойна и приятелска жилищна среда.
Lotus Living се намира в непосредствена близост до метростанция Горна Баня и автобусна спирка на рейс 111, което осигурява бърз и удобен достъп до центъра на София и ключови градски точки. В района има минерални извори, паркове и панорамни гледки към Витоша, което прави локацията изключително привлекателна за хора, търсещи балансиран начин на живот.
Комплексът е подходящ както за семейно обитаване, така и за инвестиция, съчетавайки модерна архитектура, функционални разпределения и висококачествени материали








