Обща информация
Допълнителна информация
🟩 БЕЗ КОМИСИОННА ДИРЕКТНО ОТ ИНВЕСТИТОР
ДВУСТАЕН АПАРТАМЕНТ в нова луксозна сграда кв. Остромила, Пловдив
Предлагаме двустаен апартамент 13 в новостроящата се сграда P Boutique Homes, част от проектите на LUX LIVING строително-инвестиционна компания с над 12 успешно завършени сгради в гр. Пловдив.
Сградата се отличава с модерен дизайн, висококачествено изпълнение и внимание към всеки детайл. Намира се в спокойната и бързоразвиваща се част на кв. Остромила, с удобен достъп до централни булеварди и основни пътни артерии.
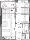
🏠 Разпределение:
Просторна дневна с кухненски бокс
Спалня
Баня с тоалетна
Коридор
Малък склад
Тераса
📏 Обща площ: 66, 15 кв. м
🏢 Етаж: 2 от 6
🌞 Изложение: север
🧱 СГРАДА И ИЗПЪЛНЕНИЕ:
КОНСТРУКЦИЯ И ЗИДАРИЯ:
Стоманобетонна конструкция най-висок клас
Тухлена зидария Wienerberger
Шумоизолирани преградни стени
ФАСАДА:
Вентилируема фасада с HPL и Laminam панели
EPS мазилка с перфектна топлоизолация
Дограма RAYNERS с троен стъклопакет
ИНСТАЛАЦИИ:
Подготовка за умен дом (Smart Home)
Ключове и контакти Bticino Living Now
Видеодомофонна инсталация Bticino
ВиК с хидрофорни и филтриращи системи
ОБЩИ ЧАСТИ:
Луксозно завършени по дизайнерски проект
Италиански довършителни материали
Блиндирани входни врати с височина 2. 20 м
Брави на входните врати с дигитално отключване през телефон
Видеонаблюдение чрез бравата с механично и мобилно/електронно заключване и отключване
Контролиран достъп и 24/7 видеонаблюдение
АСАНСЬОРИ:
Два асансьора , гарантиращи бърз и лесен достъп до и от апартаментите
Интериорният дизайн на асансьорите е съобразен изцяло с концепцията на сградата и функциите и
За удобството на пасажерите е предвиден лед дисплей заедно с озвучаване в асансьорното пространство
ПЛАЩАНЕ И УСЛОВИЯ:
Авансово плащане 80% при предварителен договор: 1250 /кв. м
Разсрочено плащане (индивидуална схема): 1350 /кв. м
Гъвкави схеми и прозрачни условия
Пълна документация и ясни договорни отношения
Без скрити такси и без комисионна
ПАРКИРАНЕ:
Възможност за закупуване на паркомясто
ПРЕДИМСТВА:
✅ Директно от инвеститора LUX LIVING без комисионна
✅ Гъвкави схеми и разсрочено плащане
✅ Висок стандарт на строителство и контрол на качеството
✅ Италиански довършителни материали
✅ Контролиран достъп и видеонаблюдение
✅ Подходящ както за живеене, така и за инвестиция
📞 Контакти:
🌐 www.pbhomes.bg












