Брокер
Обща информация
Допълнителна информация
Офис в луксозна нова сграда от смесен тип с Акт 16, топ локация в близост до Летище София, в район съсредоточен с големи инвеститори като DHL, ORBIT, FedEx, Porsche, хотелски вериги Хилтън и Ibis. Лесна и удобна комуникация с градски транспорт, в близост и до спирка на метро. Сградата е 10 етажна, ъглова и самостоятелна с прекрасна гледка и функционално разпределение. Състои се от: две подземни нива- 1665 кв. м. - паркинг за 64 автомобила; надземното РЗП е 6110 кв. м. , първите две нива са предвидени за магазини, ресторант, банков офис и други обслужващи дейностости.
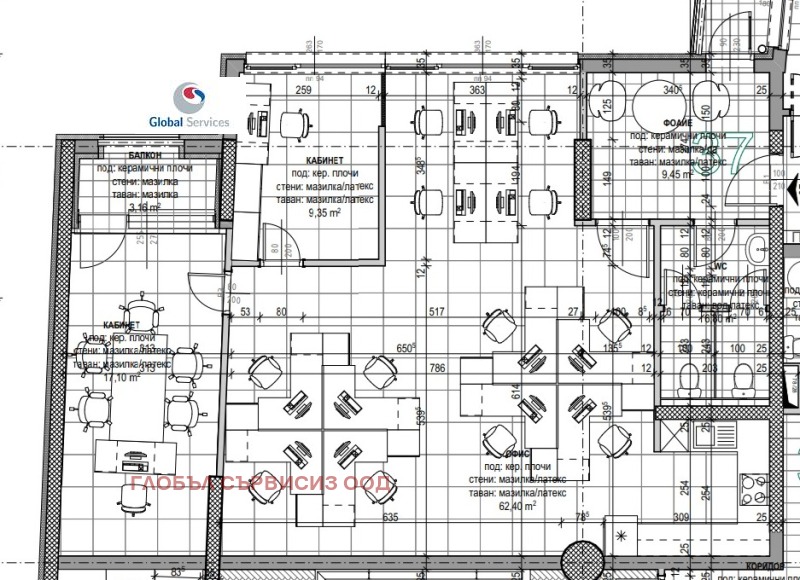
Площта на имота е 140 кв. м.
Разпределение: фоайе, голямо отворено пространство, два кабинета, балкон, санитарни помещения.
Възможност за закупуване на паркомясто - цена 25000евро.
Цените са без данък добавена стойност.
За повече информация и огледи Мариела Китанова 0888660255, оферта номер 19124

