Посетена 154 пътиПубликувана в 13:26 на 25 Септември 2025
Обща информация
Квадратура123 m2
Етаж8-ми
ГАЗНЕ
ТEЦНЕ
Допълнителна информация
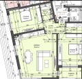
Представяме Ви тристаен апартамент в новострояща се сграда пред акт 15 в кв. Възраждане.
Имотът е с площ от 123 кв. м. ,ситуиран на осми(предпоследен) етаж .
Изключително просторно жилище с югозападно изложение.
Разпределението е както следва:
- две спални по 17 квадратни метра (едната с излаз на тераса)
- просторна всекидневна с кухненска част с площ 37 квадратни метра и панорама към града и езерото
-килер-перално(възможност да се преустрои във втора баня
-комбиниран санитарен възел
-тераса
Към имота има на партерно ниво избено помещение с площ7м2. с отделен идентификатор.
Жилището се издава по БДС. Има опция за закупуване на паркомясто18 кв. м.
За повече информация и огледи:
Калина Димитрова тел 0899920051
реф. номер003734
Особености
Асансьор • Тухла











