Брокер
Обща информация
Допълнителна информация
Най - горещата оферта на пазара в момента! Без аналог на цената спрямо района и качеството! Тристаен апартамент в енергиен клас А, луксозен затворен комплекс! На пешеходно разстояние от Резиденция Бояна, множество паркове, заведения за хранене, стадиони и др. !
Имотът се намира на етаж 2 от общо 6 в много висок клас затворен жилищен комплекс, като е изключително подходящ за живеене, поради просторните пространства в имота, както и за инвестиционен имот - дългосрочно или краткосрочно отдаване под наем тип Airbnb, поради безкомпромисната си локация!
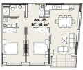
Имотът е с много добро разпределение, със застроена площ от 85. 48кв. м. Състои се от дневна с кухненски бокс, 2 спални, баня с тоалетна, тераса, склад и коридор. Изложението на апартамента е юг-изток. Сградата ще се отоплява на газ и климатици.
Сградата ще бъде изолирана с 12 см каменна вата и 20 см XPS изолация - ощо 32 см изолация покрити с HPL панели.
А в HPL панелите ще бъдат вградени Соларни панели, които да обслужват енергийните нужди на целия комплекс.
Предлагат се и мазета към всеки имот, намиращи се на сутеренното ниво - На цена: 5000 .
Подземни паркоместа и гаражи на цени от 25 000 .
На пешеходно разстояние се намират Резиденция Бояна, спирки на градския транспорт, метростанция Красно Село и метростанция Горна баня, които са на 3 спирки с тамвай или автобус, спортни зали, множество училища, детски градини, фитнеси, заведения за хранене и др.
Билдинг Бокс предоставя безплатна консултация и съдействие при финансиране на избрания от Вас имот.
Оферта:22336












