Брокер
Обща информация
Допълнителна информация
ДИРЕКТНО ОТ СТРОИТЕЛЯ !
ПРОМОЦИОНАЛНИ ЦЕНИ И ГЪВКАВИ СХЕМИ НА ПЛАЩАНЕ от 1 300 евро/кв. м.
ФИКСИРАНА ЦЕНА БЕЗ ПРОМЯНА до Акт 16 !
ДОКАЗАН СТРОИТЕЛ! ВИСОК КЛАС СТРОИТЕЛСТВО!
В момента започва строителството на следващият етап от комплекс 'Пенемат Апартс', Блок 5 и Блок 6 .
В сградата се продават:
2-СТАЙНИ, 3-СТАЙНИ, ОФИСИ, МАГАЗИНИ, ЗАВЕДЕНИЕ, ГАРАЖИ, ПАРКОМЕСТА.
Срок на завършване: 2027 г.
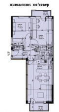
БУРЛЕКС ИМОТИ предлага на вашето внимание ДИРЕКТНО ОТ СТРОИТЕЛЯ, чудесен тристаен апартамент с обща площ 102. 75 кв. м, в новостроящ се Блок N:5, част от комплекс 'Пенемат Апартс'.
Жилището се намира в Блок 5 на 3 етаж от 6 етажна сграда.
Има следното разпределение: преддверие (7 м2), килер-склад (0, 90 м2) дневна с кухненски бокс (27, 39 м2), спалня (13, 95м2), спалня (11, 70м2), тоалетна (1, 78 м2), баня +тоалетна (4, 77м2) и две тераси по 3, 90 м2.
Сградата ще разполага с ТЕЦ.
Възможно е закупуване на подземен гараж или паркомясто.
Изложението е юг-север.
Комплекс ' Пенемат Апартс ' е разположен в изкючително комуникативния район, кв. Кайсиева градина на бул. Трети март в гр. Варна.
За повече информация Васил Сотиров, тел. 0887033333









