Продава 2-СТАЕН, град Велико Търново, Бузлуджа ID 94556004

83 000 €162 333.89 лв.Цената е с включено ДДС

Агенция

КРАСИ КЪНСТРЪКШЪНград Велико Търново Ул.Ангел Каралийчев 12
Посетена 58 пътиПубликувана в 09:21 на 09 Октомври 2025

Обща информация

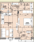
Квадратура64 m2
Етаж2-ри
ТEЦНЕ

Допълнителна информация

ДИРЕКТНО ОТ ИНВЕСТИТОРА! БЕЗ КОМИСИОННА!
Краси Кънстръкшън ЕООД предлага апартамент, в новострояща се атрактивна и модерна жилищна сграда на ул. Димитър Благоев , Кв. Бузлуджа. Комплексът е с конторлиран достъп с частен паркинг. Имотът е на комуникативно място в близост до парк, магазини и градски транспорт.
Разположението на жилищен комплекс предлага всичко, което поискате за уюта, сигурността и свободното време на цялото Ви семейство. Едно чудесно място за живеене с всички необходими удобства.

Апартаментът е с комфортно и функционално разпределение на втори жилищен етаж с изложение изток. Чистата жилищна площ е 56, 65м2 разпределена между дневна с кухненски бокс, спалня, коридор, баня с тоалетна, складово помещение и тераса.
Жилището ще бъде издадено с:
- дограма с немски профил SCHUCO 82 мм, троен стъклопакет- 4 мм четири сезона, 4 мм бяло, и 4мм нискоемисийно (К) стъкло;
- входна блиндирана врата с минерална вата;
- вътрешни интериорни врати;
- подови настилки на замазка;
- стени на гипсова мазилка
- висококачествена външната изолация Baumit с много добри топлоизолационни свойства, която ще осигури ефективно отопление през зимните месеци и приятна хладина през лятото.
- Фасадната част, покрита с Baumit e водоотблъскваща и силно паропропусклива
- тухли Wienerberger
- домофонна инсталация
- асансьорна уредба от водещия световен бранд KONE. Избраният модел асансьор е с повишена енергийна ефективност и безшумен.

Жилищната сграда ще бъде изцяло завършена с удостоверение за въвеждане в експлоатация Януари 2027 година.
Използваните технологии и материали са от най-високо качество от доказан строител

Особености

Асансьор • С паркинг • Контрол на достъпа • Тухла

Страница на обявата

Агенция

КРАСИ КЪНСТРЪКШЪНград Велико Търново Ул.Ангел Каралийчев 12

Споделяне

Преглeд на обявите по населени места: