Продава 1-СТАЕН, град София, Дървеница ID 95038870

93 368 €182 611.94 лв.Цената е с включено ДДС

Агенция

НОВА БИЛД, град София
НОВА БИЛДград София Ул. Околовръстен път 3
Посетена 14 пътиПубликувана в 13:15 на 09 Октомври 2025

Обща информация

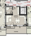
Квадратура43 m2
Етаж6-ти

Допълнителна информация

БЕЗ КОМИСИОННА!

ПРЕД АКТ 15!

ДИРЕКТНО ОТ ИНВЕСТИТОРА!

ПОСОЧЕНИЯТ АПАРТАМЕНТ Е СЪС ЗАСТРОЕНА ПЛОЩ 30 кв. м, ОБЩА ПЛОЩ 38, 86 кв. м и ПРИЛЕЖАЩО МАЗЕ 3, 58 кв. м.

ПРЕДЛАГАМЕ 1-СТАЙНИ, 2-СТАЙНИ И 3-СТАЙНИ АПАРТАМЕНТИ В ЖИЛИЩНИ СГРАДИ С АКТ 14 И АКТ 15, ЧАСТ ОТ ЖИЛИЩЕН КОМПЛЕКС , ,LEA RESIDENCE''.

ОБЕКТЪТ Е С ОСИГУРЕНО ФИНАНСИРАНЕ ОТ ПОЩЕНСКА БАНКА!

ЗА ДОПЪЛНИТЕЛНА ИНФОРМАЦИЯ, СПИСЪК СЪС СВОБОДНИТЕ АПАРТАМЕНТИ И ОГЛЕД: + 359 888 555 355.

Особености

Асансьор • С гараж • С паркинг • Интернет връзка • Контрол на достъпа • Тухла

Страница на обявата

Агенция

НОВА БИЛД, град София
НОВА БИЛДград София Ул. Околовръстен път 3

Споделяне

Преглeд на обявите по населени места: