Брокер
Обща информация
Допълнителна информация
*ID Real Estate има удоволствието да Ви представи просторен партерен апартамент с прилежащ двор, разположен в тиха и зелена част на с. Панчарево само на 100 метра над ресторант Лебеда . Имотът е част от бутикова сграда ново строителство, с контролиран достъп, модерна архитектура и високо качество на изпълнение. Районът е предпочитан заради близостта до София, спокойната атмосфера и панорамните гледки към природата. Възможно закупване на подземно паркомясто!
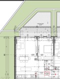
📏 Разпределение:
Дневна с кухненски бокс и трапезария 39. 31 кв. м
Спалня 14. 96 кв. м
Баня с тоалетна 3. 30 кв. м
Коридор 5. 17 кв. м
Прилежащ двор 35. 32 кв. м (с достъп от дневната)
Изба (мазе) 3. 27
✅ Предимства:
Отлична локация с бърз достъп до центъра на София (15 мин с кола)
Природа, тишина и чист въздух
Идеален имот както за живеене, така и за инвестиция
Собствен двор подходящ за деца, домашни любимци или градина
Модерно и функционално разпределение
Сграда с АКТ 14 с възможност за гъвкаво разсрочено плащане до завършването през 2026 г.
📞 За информация и огледи:
📌 ID Real Estate
📱 Телефон:+359894923131
📧 Имейл: id. realestateagency@gmail. com






