Обща информация
Допълнителна информация
🙏 С всяка сделка ние от Diamond Home помагаме! 💎
Даряваме процент от нашата комисионна на Фондация Вярвай - организация, която подпомага хора, борещи се с рак.
Вярваме, че заедно можем да направим нещо повече от просто бизнес - можем да дадем надежда. ❤ ️
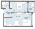
🏠 Представяме Ви двустаен апартамент в новострояща се ниска сграда на 4 етажа, разположена на тиха и спокойна локация в гр. Пловдив - кв. Остромила.
- 📐 Разпределение: дневна с трапезария, спалня, баня с wc, предверие и тераса.
- 🧭 Изложение: юг
- 📌 Предимства на сградата:
▪ достъп до асфалтов път и чисто нова инфраструктура
▪ собствен трафопост
▪ зарядни станции за електроавтомобили
▪ голям вътрешен двор и детска площадка
▪ магазин
▪ кафе
▪ супермаркет
▪ контролиран достъп и 24/7 видеонаблюдение
- 🅿 Паркинг: Паркирането е осигурено на 100%. Възможност за закупуване на паркоместа и гаражи.
- ✔ Сградата се строи от утвърден на пазара инвеститор с опит и използвани висококачествени материали при изработката.
💎 Мисията ни е да създадем доверие във Вас, като Ви предоставяме най-високо качество на обслужване!
💎 Разполагаме с над 1000 имота!
💎 Услугите, които предлагаме:
- Консултация от старши брокер
- Съдействие с кредитен консултант относно финансирането Ви
- Договаряне на възможно най-изгодни условия за Вас
- Оформление на цялата документация по сделката
- Агенцията работи с утвърден юрист в бранша
- Управление на всякакъв вид имоти
- Безплатна консултация с наш брокер
💎 За информация или оглед относно този или друг имот не се колебайте и се свържете с нас!
ОФЕРТА НОМЕР: 240390




