Посетена 35 пътиПубликувана в 16:00 на 31 Март 2026
Обща информация
Квадратура108 m2
Етаж4-ти
ГАЗНЕ
ТEЦДА
Допълнителна информация
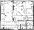
ТРИСТАЕН АПАРТАМЕНТ ПРЕД АКТ 16 И С ГОТОВИ ДОКУМЕНТИ ЗА СДЕЛКА.
Предложеният апартамент е със застроена площ от 91 кв. м. и се състои от:
Просторна дневна с кухненски бокс, две спални /едната със собствен дрешник/ , две бани с тоалетни, тераса.
Отоплението е на ТЕЦ.
Изложение Югоизток.
Акт 16 Април 2026г.
Има възможност за закупуване на гараж или паркомясто.
Сградата се намира до Метростанция Дружба.
За повече информация се обадете на 0896669658.
Особености
Асансьор • С гараж • С паркинг • Интернет връзка • Контрол на достъпа • Саниран • Възможност за дан. кредит • Тухла














