Обща информация
Допълнителна информация
Предлагаме за продажба просторен двустаен апартамент, разположен на 5-ти етаж в нова, модерна жилищна сграда, намираща се в един от най-предпочитаните квартали на Перник кв. Изток.
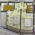
Разпределение:
Антре
Дневна с кухненски бокс
Спалня
Баня с тоалетна
Балкон достъп от дневната и спалнята
Апартаментът е с функционално разпределение, изложение с добра осветеност, и качествено проектирани пространства. Подходящ е както за живеене, така и с цел инвестиция.
Сградата:
Намира се в напреднал етап на строителство
Срок за завършване края на 2026 г.
Ще бъде изпълнена с висококачествени материали
Асансьор, добре поддържани общи части
Локация:
В близост до магазини, училища, детски градини
Отличен достъп до центъра на града и обществен транспорт
Спокоен и зелен район
За повече информация и огледи
0897 868087
0895 024344




