Посетена 220 пътиПубликувана в 20:02 на 14 Май 2025
Обща информация
Квадратура64 m2
ГАЗНЕ
ТEЦЛО
Допълнителна информация
ОТЛИЧНА ЛОКАЦИЯ ! ! ! МНОЖЕСТВО ВЪЗМОЖНОСТИ ! ! ! КАФЕ-КЛУБ ! ! !
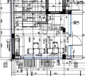
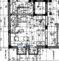
ХоумТуЮ има удоволствието да представи на Вашето внимание кафе-клуб, находящо се в ж. к Разсадника в непосредствена близост до парк Св. Св. Петър и Павел. Сграда е на етап АКТ 14, като АКТ 16 се очаква октомври месец тази година. Имота се състои от две помещения, като едното от тях е сутерен, изводи за кухненски бокс, както и санитарен възел. Имота е подходящ за офис, козметичен/фризьорски салон, кафе, закуски и има множество други приложения спрямо нуждите на бъдещият собственик. Има предвиден въздуховод. За Ваше улеснение прилагаме схема на разпределение. Ако този имот представлява интерес за Вас, обадете се сега и цитирайте този код: 127280.
Особености
Тухла






