Посетена 14 пътиПубликувана в 15:33 на 04 Февруари 2026
Обща информация
Квадратура58 m2
Допълнителна информация
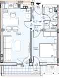
🏡 Двустаен апартамент с функционално разпределение в НОВА СГРАДА, подходящ за лично ползване или инвестиция в кв. Прослав.
🔑 Разпределение:
➤ входно антре
➤ дневна с кухненски бокс и трапезария
➤ спалня
➤ баня с WC
➤ тераса
📌 Възможност за закупуване на паркомясто или гараж
📌 Огледи с предварителна уговорка
📞 За оглед и допълнителна информация - обадете се сега ✅
✨ Deluxe Homes - коректен партньор в сделките с недвижими имоти
✔ Юридическо съдействие
✔ Кредитиране
✔ Пълно обслужване до сделка
🔍 Код на обявата: 143159
Особености
Асансьор • С гараж • С паркинг • Видео наблюдение • Контрол на достъпа • Охрана • Саниран • В затворен комплекс • Тухла

