Продава 2-СТАЕН, град Бургас, Сарафово ID 97056272

77 863 €152 286.79 лв.Цената е с включено ДДС

Агенция

ЕКС НВД ООДград Бургас ул. Сердика 2, ет. 4, офис 3
Посетена 7 пътиПубликувана в 16:41 на 13 Октомври 2025

Обща информация

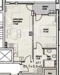
Квадратура78 m2
Етаж1-ви

Допълнителна информация

Компания Х представя на Вашето внимание двустаен апартамент в Сарафово.

МЕСТОПОЛОЖЕНИЕ: Сарафово е разположено близо до Бургас и летище Бургас, което го прави удобен избор за хора, които често пътуват. Районът е на брега на Черно море, предлагайки красиви плажове и морска панорама.

РАЗПРЕДЕЛЕНИЕ: Разполага с площ от 78 кв. м. , разгърната в следното функционално разпределение: кухненски бокс хол, спалня, баня с тоалетна, тераса.

Заповядайте да Ви го покажем. Използвайки нашите услуги Вие ще превърнете закупуването на новия си дом в едно приятно изживяване, ще получите персонален консултант, съдействие при кандидатстване за кредит от всички банки в България, интериорни дизайнери и екип, който да се погрижи за нужните документи по Вашата сделка. На Ваше разположение сме всеки ден, от понеделник до неделя от 09:00 до 20:00ч. Възползвайте се от безплатна консултация в наш офис, където ще ви спестим време и ще ви запознаем с всички актуални имоти в България, отговарящи на Вашето търсене. Свържете се с нас на 0887779990 или на 0882009283 и цитирайте кода към имота: 801-2361

Особености

Тухла

Страница на обявата

Агенция

ЕКС НВД ООДград Бургас ул. Сердика 2, ет. 4, офис 3

Споделяне

Преглeд на обявите по населени места: