Брокер
Обща информация
Допълнителна информация
First Estates има удоволствието да Ви представи една от шестте къщи в комплекс - дом заобиколен от природа, спокойствие и простор.
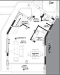
Къщата, която предлагаме, е със самостоятелен двор от 77 кв. м и с площ от 190, 90 кв. м.
Първото ниво се състои от: антре, склад, голяма дневна с трапезария и кухненски бокс, тоалетна и прекрасна веранда.
Второто ниво: три самостоятелни спални, към една от които има дрешник и тераса, и две бани с тоалетни.
На третото ниво: open space помещение с баня и тоалетна, което е подходящо за офис или четвърта спалня.
Пред къщата има обособени две паркоместа.
?В момента къщите са на етап пред Акт 15, като за изпълнението им са използвани висок клас материали. Във всяка от къщите ще има изградена инсталация за котле с радиатори, а спрямо предпочитанията на клиента, ще може да се отоплява на ток или пелети.
Цената на къщата е без включено ДДС.
За повече информация и организиране на оглед, моля свържете се с нас на телефон: 0 700 15 15 1 и цитирайте код на офертата: 2-11275



