Продава 3-СТАЕН, град Пловдив, Христо Смирненски ID 97631071
Брокер
Обща информация
Допълнителна информация
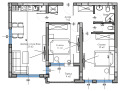
Оферта 68349 - ТОП ОФЕРТА !!! Предлагаме Ви тристаен апартамент в един от най-иновативните ни жилищни комплекси със собствен стил, изчистена и модерна визия, проектиран с нисък процент общи части, така че да създаде максимален комфорт и уют за живеене. Проектът предвижда комплексно застрояване, просторни и панорамни жилища, голям вътрешен двор с оформен детски кът и зелени зони за релакс и почивка. Паркирането е решено с Партерни и Подземни гаражи и голям избор на външни Паркоместа. Жилището се състои от светла ъглова дневна 23кв. м. с трапезария и кухненски бокс, две самостоятелни спални: детска 12кв. м. и родителска 15кв. м. , баня с тоалетна, втора тоалетна, входно антре с място за перално, килер и една тераса. Сградата привлича вниманието със своята локация, разположена в един от най-желаните и бързоразвиващи се квартали в Близост до гребна База и всички основни комуникации. Изпълнението ще се осъществява с висококачествени материали и съвременни технологии, по европейски стандарт, шесткамерна PVC дограма троен стъклопакет, блиндирана входна врата с 4-странно заключване, сензорно осветление, хидравлични асансьори с огледална кабина !!! Проектирането е съобразено така, че да създаде максимален комфорт и функционалност, като първия акцент са елегантните общи части, широки входни антрета с красив дизайн, които да носи удоволствие. Предвидена е звукоизлолация по пода за максимален комфорт и ограничаване на въздействието на шума върху обитателите на сградата. Свободни външни паркоместа на цени от 10000 евро подземни паркоместа на цени от 13000 евро, като имаме опция за закупуване и на партерни и подземни гаражи. Гъвкави схеми на разсрочено плащане в рамките на строителството, както и съдействие за банково кредитиране с изключително изгодни условия за клиенти на агенция Кондор.



