Продава 2-СТАЕН, град Варна, Кайсиева градина ID 97748941
Брокер
Обща информация
Допълнителна информация
Предлагаме Ви за продажба двустаен апартамент в новострояща се сграда в квартал Кайсиева градина, гр. Варна. Проектът е разгърнат в една сграда на десет етажа, които са разположени по начин, осигуряващ максимален фронт за благоприятно разположение на апартаментите спрямо географските посоки, така че да осигуряват максимален комфорт на живот.
Жилищната сграда ще бъде изпълнена по най-съвременни способи с водещи в качеството производители на строителни материали, съгласно последните изисквания и нормативи за устойчивост, топлоизолация и пригодност за живеене.
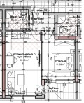
Имотът е расположен на пети жилищен етаж с площ 63. 41 кв. м. и се състои от коридор, баня с тоалетна, дневен тракт с кухненски бокс, една спалня, тераса.
Всички жилища ще се издават по БДС.
Сградата се намира на много комуникативно място, в близост има детска градина, училище, Кауфланд, Лидл, автобусни спирки и много други.
Лице за контакт: Злата Комарова - 0896102106





