Продава ПРОМ. ПОМЕЩЕНИЕ, град Пловдив, Индустриална зона - Юг ID 97853771
Брокер
Обща информация
Допълнителна информация
✅ ЕКСКЛУЗИВНО ПРЕДЛОЖЕНИЕ!
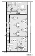
➡ ️ БРАВА ЕСТЕЙТ ви представя многофункционална сграда, разположена в парцел с директен достъп от Околовръстния път на град Пловдив. Обектът е промишлено‐ търговска база, включваща складово хале, шоурум зона, както и офисни помещения, разположени над шоурума. Минималната височина на тавана на халето е 7. 5м.
➡ ️ РЗП на имота 3920 кв. м.
➡ ️ Обектът е проектиран като съвременна логистично‐ търговска сграда, подходяща за:
складова и дистрибуционна дейност,
търговско представителство,
изложбена/демонстрационна зона,
офисна администрация.
➡ ️ Архитектурното решение е оптимизирано за висока функционалност, бърза логистика и удобство за клиенти и служители.
➡ ️ Сградата има наличен паркинг за леки автомобили пред шоурумите, за тежкотоварния превоз е предвидена зона за паркинг, товарна и разтоварна дейност. Входовете и изходите са организирани така, че да позволяват еднопосочно движение на трафика. Обособени са 5 рампи, които осигуряват лесен достъп до всички части на помещението
➡ ️ Локацията е изключително атрактивна, разположена директно на Околовръстния път на Пловдив, с отлична видимост, лесен достъп и бърза връзка към ключови направления АМ Тракия , Южната индустриална зона и основните входове към града. Зоната е развита и предпочитана за бизнес, логистика и търговия.
➡ ️ Срок за завършване от 6 до 8 месеца
➡ ️ Обявената цена е без ДДС
📞 За повече информация ни се обадете директно!





