Брокер
Обща информация
Допълнителна информация
Компания за недвижими имоти Купи в България предлага за продажба просторен двустаен апартамент в модерен жилищен комплекс, разположен в един от най-динамично развиващите се и добре устроени райони на Варна кв. Младост.
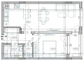
Жилището се намира в новострояща се сграда пред Акт 14, на трети етаж от общо 11 и разполага с обща площ от 76, 10 кв. м. , от които 64, 77 кв. м. чиста жилищна площ. Апартаментът се отличава с функционално разпределение и отлично източно изложение, което осигурява естествена светлина през целия ден. Издава се по стандарт БДС, което дава възможност за довършване и обзавеждане според личния вкус на новия собственик.
Разпределение:
Входно антре - 5, 33 кв. м.
Просторна дневна с кухненска част - 29 кв. м.
Спалня - 11, 6 кв. м.
Баня с тоалетна - 3, 33 кв. м.
Килер - 1, 6 кв. м.
Лоджия - 3, 4 кв. м.
Паркомясто:
Към имота има и възможност за закупуване на външно паркомясто с площ от 12, 5 кв. м. за 12 000
Сградата е ново тухлено строителство с модерна визия, разположена на само 20 метра от автобусна спирка, в близост до училища, детски градини, магазини, търговски обекти и ключови пътни артерии.
Районът предлага:
? Отлична инфраструктура
? Спокойна жилищна среда
? Бърз достъп до центъра на града
? Богат избор от услуги и удобства
Забележка : Приложените по-горе снимки и визуализации са илюстративни, те имат за цел да Ви дадат максимално добра идейна представа за общия вид и разпределението на имота !
При нужда от банково кредитиране, можете да се възползвате напълно БЕЗПЛАТНО от кредитно консултиране с лицензираните ни кредитни консултанти, с помощта на които ще спестите време и ще намерите най-подходящите за Вас условия и банка!
Свържете се с нас за повече информация и оглед! ID 32290





