Обща информация
Допълнителна информация
КУПИ ЗА EUR 495 на месец!
За да не изпуснете този имот, обадете се сега и цитирайте този код: 25482.
'БЕСТ СЕЛЪРС' предлага на Вашето внимание двустаен апартамент в ж. к. 'Дружба 1'.
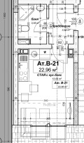
РАЗПРЕДЕЛЕНИЕ: Еднопространствено жилище със санитарен възел.
СГРАДА: Сградата се очаква да бъде въведена в експлоатация през 2026 година. Към момента е с акт 14. Етаж 6/6.
ЛОКАЦИЯ: ж. к. 'Дружба 1'. Апартаментът се намира на пешеходно разстояние от супермаркет 'Т Маркет', 108 СУ 'Н. Беловеждов', ДГ 13 'Калинка' и спирки на градски транспорт. Районът разполага със свободно междублоково паркиране. Бърз и лесен достъп до бул. 'Христофор Колумб'.
---
'БЕСТ СЕЛЪРС' е Вашият партньор при сключването на сделка с недвижим имот от първия оглед до финалния подпис. Екипът ни от професионалисти е твърдо решен да промени представата Ви за пазара на недвижими имоти и да Ви остави с приятни емоции след приключването на една от най-важните сделки в живота Ви. Можете да разчитате на нас за ПЪЛНО съдействие в търговските преговори, абсолютно прозрачна обстойна проверка на историята на имота за целия период, консултация и набавяне на пълния пакет документация, необходими за финализиране. На купувачите, разчитащи на банков кредит сме готови да осигурим НАПЪЛНО БЕЗПЛАТНО професионално кредитно обслужване от водещи НЕЗАВИСИМИ кредитни посредници. ОДОБРЕНИЕ ДО 24 часа.






