Продава 2-СТАЕН, област Пловдив, гр. Асеновград ID 99351236
Обща информация
Допълнителна информация
!! ДВУСТАЕН В ЖИЛИЩЕН КОМПЛЕКС ' СПОРТИСТ' !!
!! РЕЗЕРВИРАЙ СВОЯ НОВ ДОМ СЕГА !!
След успешно реализирани три сгради на ул. ' Спортист' до детска градина ' Надежда' , стартираме проекта на нови 4 сгради с прекрасни жилища, които ще превърнем в уютен дом.
Жилищен комплекс ' Спортист' се отличава с високачествено строителство, просторни стаи, компактни квадратури и изключително малък процент общи части. Всяко жилище разполага със складово помещение, а проблемът с паркирането е решен с партерни гаражи, паркоместа и подземен паркинг под всички сгради.
Комплексът се намира на много предпочитано място за живеене - в района на болницата, спортната зала, гимназията и детска градина ' Надежда' .
Разполага с:
- ДВУСТАЙНИ ЖИЛИЩА, ПРЕКРАСНИ ЗА ИНВЕСТИЦИЯ
- ТРИСТАЙНИ ЖИЛИЩА С ПРОСТОРНИ СТАИ
!! ВСИЧКИ ЦЕНИ СА БЕЗ ДОПЪЛНИТЕЛНА КОМИСИОНА ОТ КУПУВАЧ !!
!! ДИРЕКТНИ ПРОДАЖБИ !!
! ВЪЗМОЖНОСТ ЗА РАЗСРОЧЕНО ПЛАЩАНЕ БЕЗ ОСКЪПЯВАНЕ - ГАРАНТИРАНЕ ЦЕНА !!
За пълна информация се свържете с нас:
0896376226 0897982700 0896721616
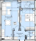
Разпределение на всички сгради:
www.in-borsa. com
Агенцията предлага:
-ИЗЦЯЛО БЕЗПЛАТНО СЪТРУДНИЧЕСТВО ПРИ БАНКОВО КРЕДИТИРАНЕ С ВСИЧКИ ВОДЕЩИ БАНКИ.
-Изготвяне на всички документи за ПОКУПКО-ПРОДАЖБА на недвижими имоти!
-ЮРИДИЧЕСКИ УСЛУГИ.










