Посетена 2 пътиПубликувана в 14:24 на 14 Февруари 2026
Обща информация
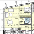
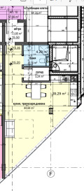
Квадратура60 m2
Етаж5-ти
Допълнителна информация
Предлагаме избор от дву и едно стайни с квадратура от 60, 69, 106 и др. до 143 квм обща площ апартаменти с просторни стаи хол от 30 до 46 квм, спални от 14 до 25 квм, склад, дрешник, бани. Някои от жилищата имат лоджи, а всички са с френски прозорци с красиви гледки към планината и града. Пред акт 14. Изложенията са югоизток и юго запад.
Бърз изход на Околовръстното. На 2 минути от спирки на градски транспорт, Фантастико и Лидл.
Подходящи и за офис, хоме офис.
Особености
Асансьор • Интернет връзка • Видео наблюдение • Контрол на достъпа • Саниран • Тухла










