Брокер
Обща информация
Допълнителна информация
Референтен номер: 3955.
МОДЕРЕН ЖИЛИЩЕН КОМПЛЕКС В КВ. ГАГАРИН!
ПРОМОЦИОНАЛНА ЦЕНА, АКО АПАРТАМЕНТЪТ СЕ ИЗПЛАТИ ДО ДЕКЕМВРИ 2026г!
ВЪЗМОЖНО БАНКОВО КРЕДИТИРАНЕ!
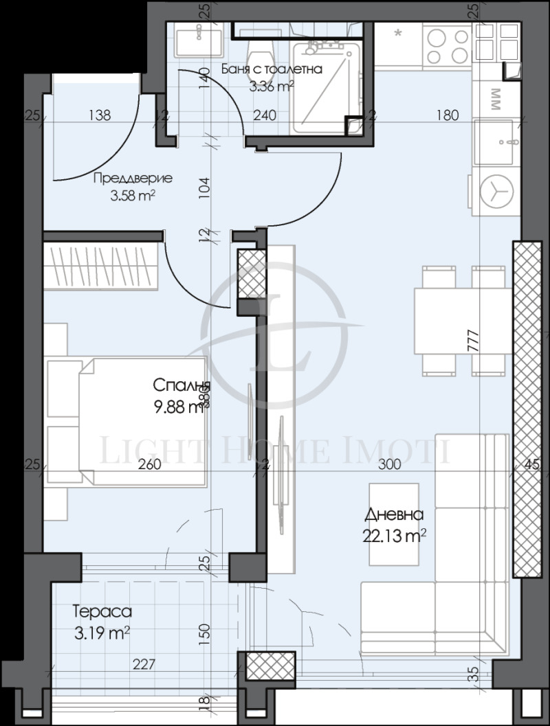
Основни характеристики на имота:
- Площ: 61. 48 кв. м
- Разпределение: Хол с кухненски бокс, спалня, баня с тоалетна, антре и тераса
- Вид строителство: Тухла (2028г. )
- Етажност: 7 ет. от 16 ет. (асансьор)
- Изложение: Изток
- Паркиране: Възможност за закупуване на паркомясто или гараж
Апартаментът се намира в новострояща се жилищна сграда, където ще откриете комфорт и стил, които ще отговорят на всички ваши изисквания!
За повече информация и организиране на огледи, моля, свържете се с нас на посочения номер, като ще Ви е необходим следният референтен номер: 3955
Лайт Хоум имоти е доверен партньор на най-големите банкови институции в страната и съдейства за преференциални условия при нужда от кредитиране. Ще получите юридическо съдействие през целия процес на сделката, както и съдействие при подготовка, подаване и получаване на всички необходими документи за сделката.



