Продава 2-СТАЕН, град Варна, Владислав Варненчик 1 ID 99878981
Брокер
Обща информация
Допълнителна информация
АП. А17
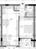
Стартираме продажбата на нова жилищна сграда в кв. Владислав Варненчик, само на 250м отстояние от СОУ' Пейо Яворов' и кметство Владиславово! Нова пет етажна сграда в строеж, с два входа и само по четири апартамента на етаж. Асансьор и широки общи части приспособени и за инвалиди. Плоски покриви, без скосявания, изцяло покрити етажи -без отстъпи. Изключително практичен жилищен проект, като стаите са достатъчно големи и уютни и във всяко жилище има поне по два санитарни възела. В тристайните апартаменти спалните са със собствен дрешник и още три сервизни помещения. Практично, удобно и функционално! Моля разгледайте архитектурния проект към всяка обява, за по обстойна информация! Разсрочена схема на плащане!
Избор на двустайни и тристайни апартаменти, подземни и надземни паркоместа и гаражи. Сградата е в непосредствена близост до автобусна спирка, с лице към асфалтов път. Тази нова кооперация се намира само на 250м отстояние от СОУ' Пейо Яворов' и кметство Владиславово!
Тази нова кооперация се намира само на 250м отстояние от СОУ' Пейо Яворов' и кметство Владиславово!
Нова пет етажна сграда в строеж, с два входа и само по четири апартамента на етаж. Асансьор и широки общи части приспособени и за инвалиди. Плоски покриви, без скосявания. Моля разгледайте архитектурния проект към всяка обява, за по обстойна информация! Разсрочена схема на плащане!
Големи площи, няколко сервизни и мокри помещение към всеки един апартамент.
Възможно кредитиране;
Обади се сега и цитирай този код 662395






