Обща информация
Допълнителна информация
Компания `Х` представя на Вашето внимание двустаен апартамент в Центъра!
МЕСТОПОЛОЖЕНИЕ: Център е сърцето на Пловдив и предлага удобство и динамика за живеене и работа. Неговото голямо предимство е близостта до всички важни институции, магазини, заведения и културни обекти. В района има много исторически и архитектурни забележителности, като Старият град на Пловдив и Античен театър на Филипопол, които правят квартала интересен и красив. Центърът предлага лесен достъп до градски транспорт, много възможности за разходки, развлечения и култура, което го прави един от най-предпочитаните райони на Пловдив.
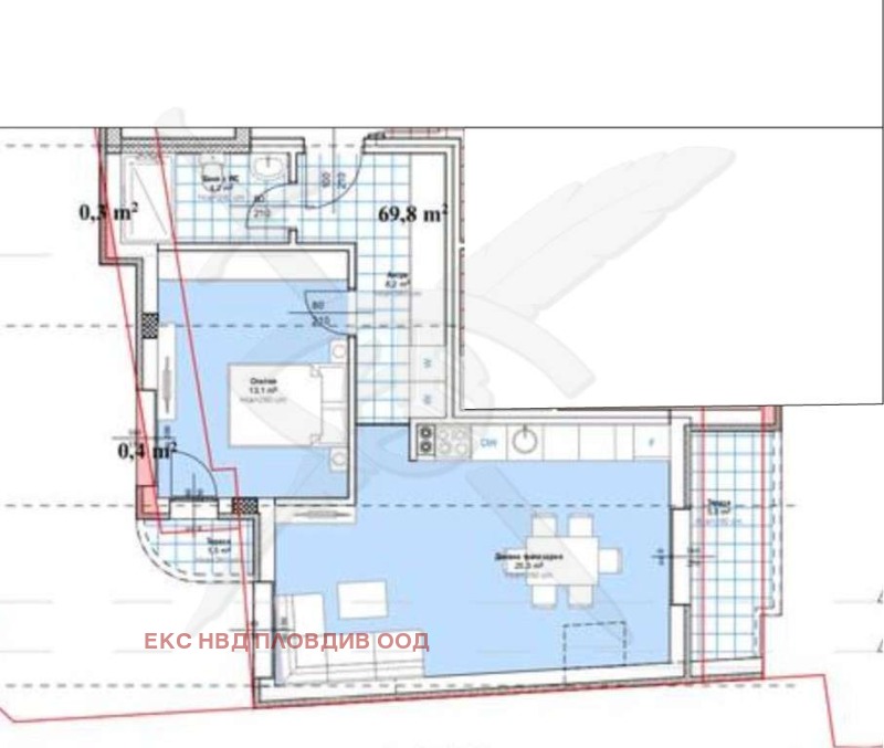
РАЗПРЕДЕЛЕНИЕ: Жилището разполага с площ от 85 кв. м. , разгърната в следното функционално разпределение: входно антре, кухненски бокс+всекидневна, спалня, баня+тоалетна, 2 тераси.
СЪСТОЯНИЕ: Апартаментът се предлага необзаведен, което дава възможност на новите собственици да го обзаведат и оформят по свой вкус и стил.
Заповядайте да Ви го покажем. Използвайки нашите услуги Вие ще превърнете закупуването на новия си дом в едно приятно изживяване, ще получите персонален консултант, съдействие при кандидатстване за кредит от всички банки в България, интериорни дизайнери и екип, който да се погрижи за нужните документи по Вашата сделка. На Ваше разположение сме всеки ден, от понеделник до неделя от 09:00 до 20:00ч. Възползвайте се от безплатна консултация в наш офис, където ще ви спестим време и ще ви запознаем с всички актуални имоти в България, отговарящи на Вашето търсене. Свържете се с нас на 0887779990 или на 0884060990 и цитирайте кода към имота: 101552

