Посетена 127 пътиПубликувана в 18:13 на 16 Февруари 2026
Обща информация
Квадратура73 m2
Етаж4-ти
ТEЦЛО
Допълнителна информация
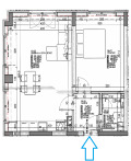
ОТЛИЧНА ЛОКАЦИЯ ! ! ! ДО МЕТРОСТАНЦИЯ ! ! ! БУТИКОВА СГРАДА ! ! ! ДОКАЗАН СТРОИТЕЛ ! ! ! Предлагаме на вашето внимание двустаен апартамент, със следното функционално разпределение: входно антре, дневна с трапезария и кухненски бокс, спалня и баня с тоалетна. Сградата е с разрешение за строеж, като АКТ 15 се очаква до края на м. октомви 2027г. Сградата ще бъде изпълнена с висококачествени материали съобразени с последните стандарти на новото строителство. Има възможност за закупуване на подземни паркоместа на цена от 40 000 евро. Сградата се намира на отлична локация, в близост до метростанция 'ТЕАТРАЛНА', 191 ДГ, 17 ДКЦ, Парк 'ЗАИМОВ', магазини и училища. За ваше улеснение прилагаме схема на разпределение на имота.
Особености
Тухла


